24小时加固服务热线:134-02000333

新闻中心

公司专题 行业新闻 常见问题

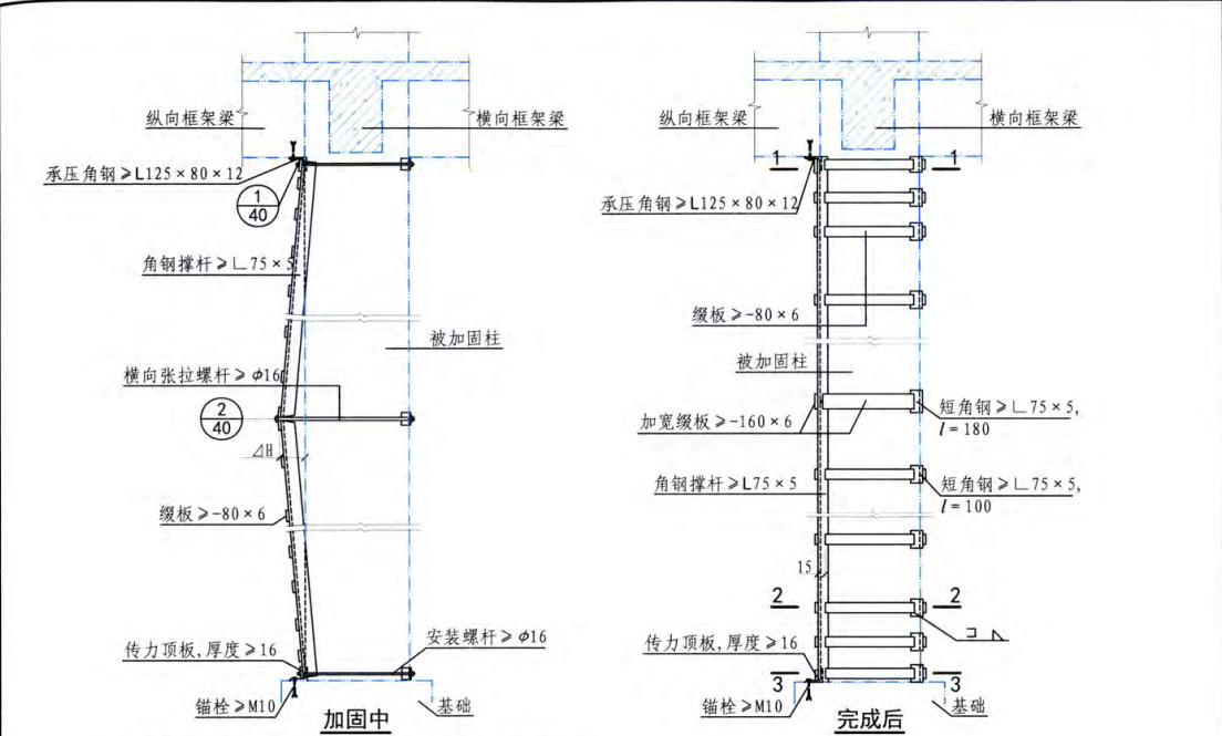
横向张拉单侧预应力撑杆加固框架柱

外加预应力-横向张拉单侧预应力撑杆加固框架柱加固法介绍

如下图

注意事项


1. 单侧预应力撑杆加固法适用于弯矩不变号的大偏心受压柱的加固
2. 横向张拉量 LI 由计算确定.
3. 缀板在规定的范围内宜加密。
4角钢 、缀板等钢构件与原结构间的缝隙应灌注胶粘剂使之成为一体
5剖面2- 2' 3-3见下图



横向张拉双侧预应力撑杆加加固框架柱做法介绍   https://www.shjgu.com/new_show_529.html

X

截屏,微信识别二维码

微信号:shjiagu

(点击微信号复制,添加好友)

  打开微信

微信号已复制,请打开微信添加咨询详情!